A major Disney infrastructure project just took a major step forward!
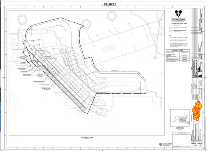
Several months ago, Disney filed an application for the expansion of the Magic Kingdom’s Ferry Dock, including dock expansion, hardscape improvements, and a floodplain compensation area at the ferry boarding location.
In late March 2026, the South Florida Water Management District approved Disney’s permit application for work. A timeline for construction on the project was not revealed.
The expansion will be the latest in a series of updates to the ferry infrastructure that Disney has made in the last decade+. In 2014, Disney added a second dock to both the Magic Kingdom and Transportation and Ticket Center to double the boats and, in turn, capacity, while 2021 brought a second level for both docks, allowing guests to board and disembark on both the top and bottom levels of the boat.
Ferry service to the Magic Kingdom is one of Disney World’s original transportation methods, having been in service since 1971. It remains popular to this day, with the boats transporting up to 600 passengers to and from Magic Kingdom per trip.
The South Florida Water Management District just gave Disney the green light to move forward with a new Magic Kingdom Ferry Dock expansion project. Stay tuned to DFB for more on this project.
4 Hacks That Make Booking Magic Kingdom Dining Reservations 10x Easier
Join the DFB Newsletter to get all the breaking news right in your inbox! Click here to Subscribe!
WE KNOW DISNEY.
YOU CAN, TOO.
Oh boy, planning a Disney trip can be quite the adventure, and we totally get it! But fear not, dear friends, we compiled EVERYTHING you need (and the things to avoid!) to plan the ULTIMATE Disney vacation.
Whether you're a rookie or a seasoned pro, our insider tips and tricks will have you exploring the parks like never before. So come along with us, and get planning your most magical vacation ever!
What’s your go-to transportation route to get to the Magic Kingdom? Let us know in the comments below.





Our handy (and portable!) ebook guides make sure you get the best deals and can plan a vacation of a lifetime.

TRENDING NOW
Thinking of staying at a Disney World hotel in 2027 but don't know if it's...
The free water park tickets for Disney World hotel guests is coming back in 2027!
No one accidentally ends up shopping for Loungefly Minnie ears. This is a highly specific spiral....
It's officially time to start planning your 2027 Disney World vacation!
We've unlocked the ultimate EPCOT snack!
Disney World just announced a NEW Dining Plan deal for 2027 vacations!
Disney just dropped the FULL track list for Rock 'n' Roller Coaster Starring The Muppets...
The new Disney Visa card comes with some major perks that are made for people...
There are some genuinely great finds on Amazon right now that let you carry that...
The Disney Dining Plan is back for 2027 -- with a NEW tier!
Disney settles livestream lawsuit for $50 million.
This Disney caramel bar looks weirdly plain, but don’t be fooled, it’s one of the...
This new look at Rock 'n' Roller Coaster Starring the Muppets makes us want to...
Disney fans in their 50s have entered their “I will not sleep on a table...
We have a first look at the NEW Disney Hallmark ornaments coming out in 2026!
New Winnie the Pooh Loungefly bags just dropped, and yes, they are dangerously cute. Honey...
Need recommendations for what Disney restaurants to try on your first visit to Disney World?...
Disney just dropped a first look on Han Solo at Disneyland!
This new permit is getting us even more excited for Walt Disney Studios.
April has delivered some incredible Disney discounts!